万科桂鑫公益图书室

<  源起

贵州公益图书室位于,贵州省·贵阳市·贞丰县的两所小学,是万科集团捐赠公益基金,由桂馨基金会组织捐赠落实,是扶贫贵州贞丰的公益事业的一部分。六月份,万科集团联系到我们,委托我们设计贵州的公益图书室项目。

 

<  趣味性空间

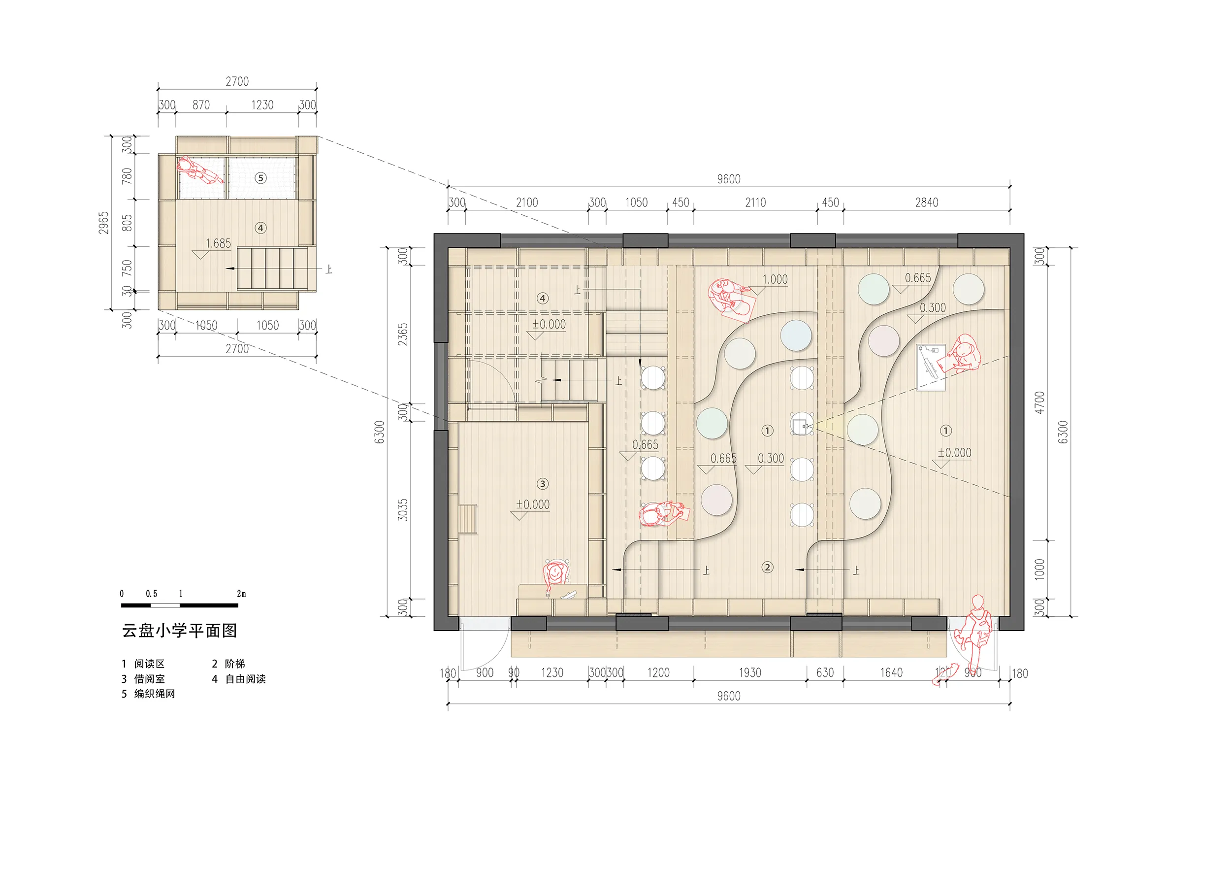
贵州多山,多为喀斯特地貌,而且贵州梯田很多,自由的曲线,上下连贯。梯田和山道溶洞的这种在地化的独特地形景观,成为了图书室方案的灵感。同时空间趣味性可以增加小朋友的创造力,图书室的设计中设置了小朋友喜欢的包裹空间,可休憩阅读的网床,上上下下的台阶步道,大大小小可窥视的窗洞,曲线的阶梯座位等。

 

<  预制化的呈现方式

两个学校位于偏远的山区,交通不便,施工条件有限,希望施工尽量不要影响同学们学习,能够快速完成施工。出于这种现状条件,在做方案的时候便考虑选择工厂化预制的实施方式。为了应对现场的限制条件以及施工质量,图书室工厂预制化策略被一步步实现,并落实到位,现场五个工人配合设计师,仅仅用了“7天”时间,完成了图书室的所有安装工作。

图书室从某种意义上来说也像是一件大家具,所有零部件都从工厂生产好,到现场拼装放入,大家具跟四周墙体完全脱开,不需要与墙体做固定,自身就是一个独立的受力结构和空间系统。而且具有极强的灵活性和可移动性、可组装、可拆分、可运输、可生产、可更换、可复制,这样的建造思路和实施方式,可以方便今后在其他学校图书室推广应用实施。

 

<  被复合使用的可能性

在图书室的设计中,设想了空间被复合使用的可能性,图书室有四分之三的空间呈台地阶梯状,类似于阶梯教室的变体,可以上图书阅读课、音乐课、视频教育课,举办师生读书会,开展学校小讲座、分享会,做教师内部培训会议,办学生家长会等等,让空间有更多的可能性,从而被更好的利用起来。

 

 

项目名称:贵阳贞丰县桂鑫公益图书室

项目地点:贵阳贞丰县者相一学、云盘小学

项目类型:公益图书室

设计时间:2019年6月

竣工时间:2019年9月

室内面积:者相小学:85m²/云盘小学60m²

业主管理团队:董特、陆志翔

室内设计:尌林建筑设计事务所

资金捐赠:万科企业股份有限公司

慈善捐赠:桂鑫慈善基金会

项目施工:中关村人居环境工程与材料研究室

设计单位:尌林建筑设计事务所

团队成员: 陈林、时伟权、何雨涵、陈伊妮、赵艺炜(实习)、燕伟娟(实习)

结构形式: 木结构

主要材料:花旗松,辐射松,云杉,欧松板

建筑摄影:赵奕龙、陈林