白鸟山庭·民宿酒店

项目信息

项目名称:白鸟山庭·精品民宿酒店

项目地点:浙江省杭州市西湖区龙坞茶村

项目类型:酒店民宿

设计时间:2018年7月

设计单位:尌林建筑设计事务所

主持建筑师:陈林

参与建筑师:刘东英 陈松 何雨韩 时伟权

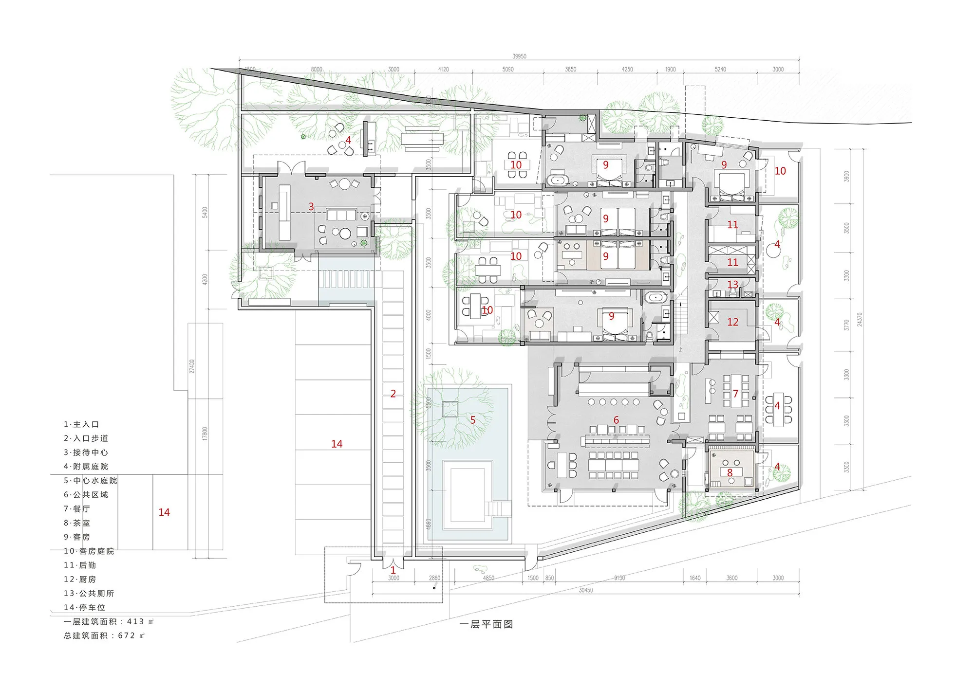
室内面积:672㎡