新农居设计—关于乡村营造的新探索

<  作品阐述

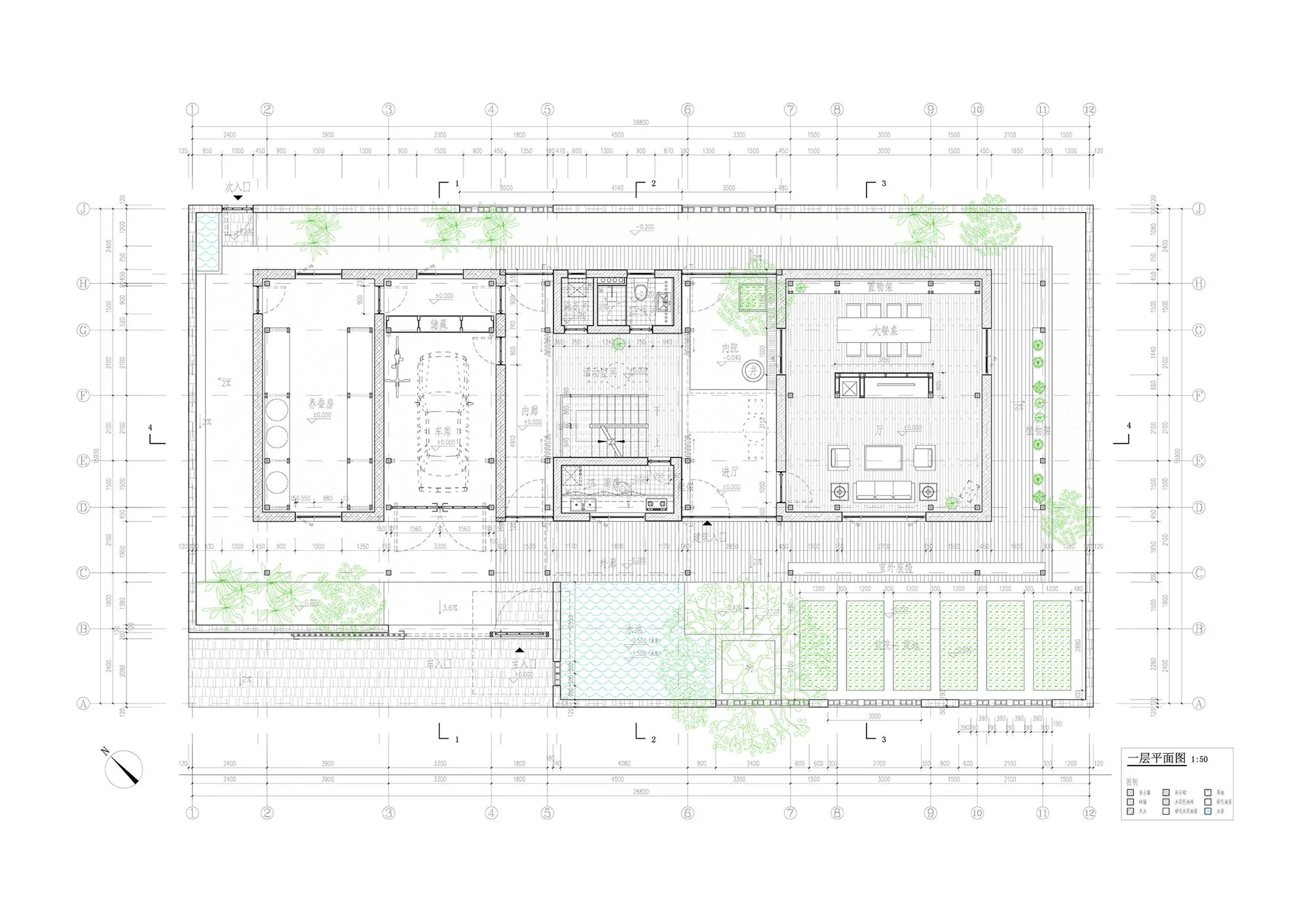
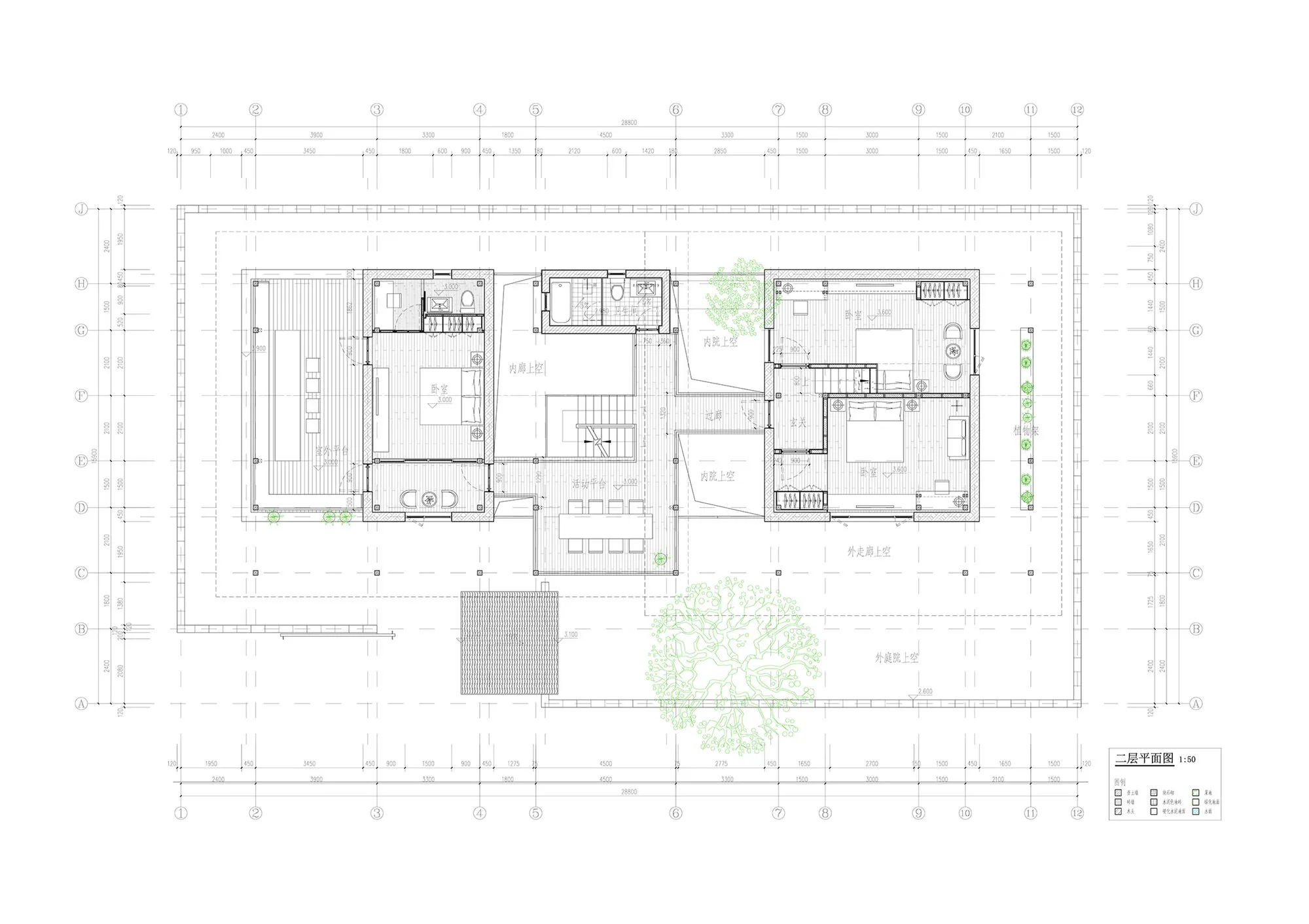
农居设计的场地选在富阳市洞桥镇贤德村何村坞, 试图创造一个乡村的新建筑类型,原型来自让地传统的建筑类型,这种类型可以在乡村中根据不同的住户需要和人口关系来调整农居类型和面积,而且木结构作为一种独立的结构体系可以根据需要来调整开间尺寸和开间数,农居设计的类型需要具有很强灵活性和适应性,类型可以发展和演变,村民可以自己动手建造,结合传统的建造工艺,让乡村建筑真正变成村名自己能够参与的建筑。

<  导师评语

思路清楚,在一个合适的前提下,怎么样把一个传统里的夯土和木构做一个这样的延续,把夯土和木构运用到新民居里,整个结构体系发生了变化,夯土整个的语言既和传统有关又有新的变化,尤其是很多细腻的细腻的细节,不光是技术性的构造细节,包括一些和生活有关的细节处理,考虑的非常细致,整个图纸表达的清楚,简单,清晰,但是又有足够的深度,这是一个很出色的毕业设计。

作品名称:新农具设计—寻找乡村建筑的一种新类型

作者姓名:陈林

指导老师:王澍教授

创作时间:2014年5月27日