不止菜场·一次菜场可能性的探索

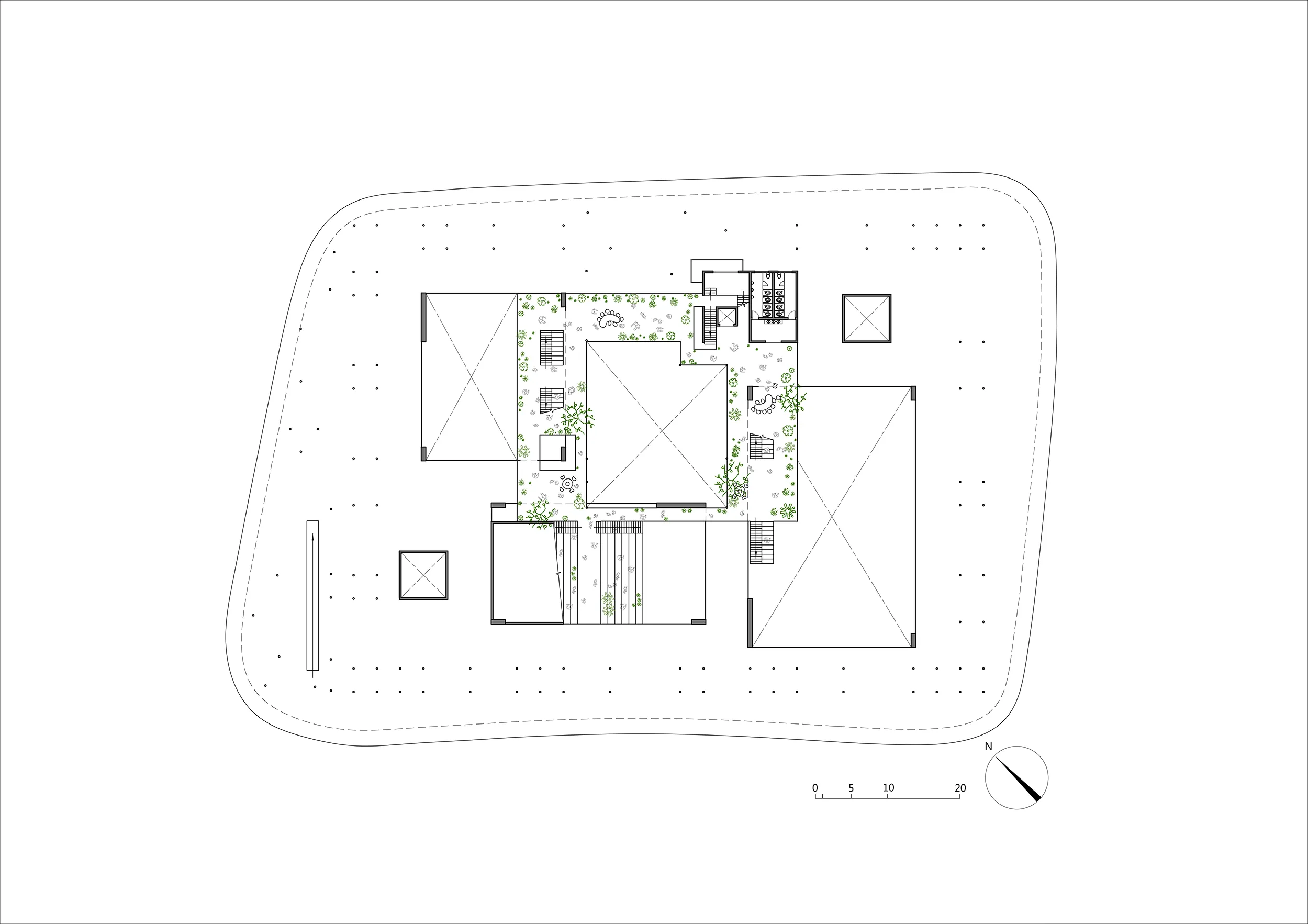
设计的概念源于想让菜场建筑以一种特别开放的姿态面对大众,菜场其本身拥有人们日常生活所必需的使用的功能属性,从来都是不失活力和人群的建筑。但是菜场建筑往往只具有单一的功能属性和单一的使用时间,因此我们希望让建筑能拥有更丰富的功能空间和体验空间来服务当地人以及外来游客,抛弃以往菜场单一的功能和使用时间,采用灵活的开放的大空间,从而达到使用上的多种可能性,诸如中庭空间,可满足多种使用要求,举办当地特色的唱戏活动或各种中小型聚会,宴会或成为当地人休闲娱乐的场所,夹层的多功能阶梯空间,可为当地提供午夜电影剧场活动,举行艺术讨论集会等,屋顶空间一部分成为露台餐厅,成为当地人与外地人交流与休闲的场所,一部分为漫步系统,提供给周边社区散步休闲。建筑外围形成的卖菜区域,菜场融于其中,而不止于此,以一种模糊的定义与渗透的空间边界,从而达到更多的可能性,在空间中融入乡村与城市的多种未知性。采取了完全融入环境的构想,各个空间相互联系又各自分离,保持视觉连续性、空间连续性以及使用的多种可能性。

项目名称:不止菜场 · 一次菜场可能性的探索

项目地点:云南安宁金方乡村

项目类型:竞赛项目

设计时间:2019.7-2019.8

设计单位:尌林建筑设计事务所

主持建筑师:陈林

参与建筑师:陈松、刘东英、陈伊妮、时伟权、燕伟娟(实习)、俞晨涛(实习)、陈广龙(实习)

结构形式:钢结构